ČESKOSLOVENSKÉ OPEVNĚNÍ

VÝSTAVBA OPEVNĚNÍ

Výstavbou opevnění v Československu bylo pověřeno a kvůli tomu také zřízeno Ředitelství opevňovacích prací. Řídícím orgánem byla Rada pro opevňování. V průběhu let byly přijaty různé strategie obrany území, které reagovaly především na politický vývoj v sousedních zemích.

Páteř obrany mělo tvořit těžké opevnění na linii Odra - Labe, které mělo krýt severní křídlo armády, která by v případě válečného konfliktu s Německem ustupovalo Československem ve směru západ - východ. Plánována byla výstavba více než tisíce těžkých objektů a patnácti tisíc objektů lehkého opevnění. Tohoto počtu se však nikdy nepodařilo dosáhnout.

Foto
Výřez z německé špionážní mapy v měřítku 1:300 000 s vyznačeným průběhem opevnění v prostoru Orlických hor a Jeseníků. Zdroj: germandocsinrussia.org

S výstavbou lehkého opevnění bylo započato v roce 1935 již o rok později byly stavěny první těžké objekty na Ostravsku. Jejich stavbě asistovali francouzští odborníci a nesou také největší podobnost se svojí francouzskou předlohou. Z tohoto důvodu jsou tyto pěchotní sruby nazývány objekty francouzského typu. Těžké opevnění bylo budováno také na předmostí Bratislavy a v Komárnu. Po obsazení Rakouska Německem bylo přistoupeno k intenzivnímu opevňování této části hranice (do té doby zde byly budovány pouze linie lehkého opevnění). Pěchotních srubů se zde podařilo stavebně dokončit pouze několik. K jejich plné aktivaci došlo až v rámci začlenění objektů do "železné opony"

Páteř opevnění měly tvořit dělostřelecké tvrze, které byly budovány pouze na nejohroženějších místech pevnostní linie. Výstavba nejvíce postoupila u tvrzí Smolkov, Hůrka, Bouda, Adam a Hanička. Alespoň částečně rozestavěné byly tvrze Skutina, Dobrošov a Babí. V dalších letech výstavby opevnění bylo počítáno s nahrazením finančně velmi náročných dělostřeleckých tvrzí samostatnými dělostřeleckými objekty. K jejich realizaci však již nedošlo.

Externí odkazy

Tyto stránky poskytují pouze velmi základní informace o výstavbě československého opevnění. Mnohem více informací lze získat na specializovaných internetových stránkách, které se věnují výhradně této problematice:

Špionáž proti československému opevnění

V poslední době vyšlo několik článků týkajících se výstavby cvičných objektů, které byly vybudovány v německých výcvikových prostorech na základě špionáže československého opevnění. Na nich následně cvičila pěchota provádění útočných operací. Známé jsou například objekty ve výcvikovém prostoru (Truppenübungsplatz) Neuhammer (dnes Zagan, Polsko), který je ovšem dodnes aktivně využíván. Cvičné objekty byly nicméně budovány také na dalších místech, kde je situace o poznání příznivější. Jedná se především o výcvikový prostor Döberitz u Berlína a Jüterbog. Ten byl využíván i v období Studené války, a tak je zde možné narazit také na sovětské objekty.

Foto
Nákres objektu lehkého opevnění vz. 37 typ B (v německých pramenech označovaný jako typ A), který byl budován ve vojenských prostorech německé armády pro výcvik jednotek přopravovaných na útok proti československému opevnění. Ve střílnách byly osazeny německé pancéřové desky 422P01, přičemž pozorovací průzor byl zazděn. Zdroj: Bundesarchiv
Foto
Nákres armování objektu lehkého opevnění vz. 37 dle špionážních podkladů získaných německou armádou. Zdroj: Bundesarchiv

Právě tohoto výcvikového prostoru se týká několik stránek dokumentů, přístupných v elektronické verzi Bundesarchivu, popisujících akci "Stavební projekty 1938 v Jüterbogu/Bauvorhaben 1938 in Jüterbog". Díky tomu je možné udělat si představu o stavu špionáže proti československému opevnění. Dokument datovaný ke dni 24.2.1938 požaduje výstavbu šesti objektů dle přiložené dokumentace včetně konkrétní specifikace umístění objektů v terénu. V pěti případech jde o výstavbu objektů lehkého opevnění imitujících československé opevnění vz. 37. Pouze v jediném případě je však požadována co nejvěrnější konstrukce. V tomto případě jsou hlavní střílny tvarované v betonu, jako vchodové dveře je použit typ 431P01 v odolnosti D. Ve třech případech jsou ve střílnách použity německé pancéřové prvky 422P01 opět v odolnosti D. Nejzajímavější je poslední oboustranný objekt lehkého opevnění, který byl upraven dle německých standardů. Osazen tak byl dvojicí pancéřových desek pro těžký kulomet 6P7 v odolnosti B. Jako vchodová střílna posloužila deska 48P8 v odolnosti D, Ve vstupu byly nejprve osazeny dveře 430P01 a za nimi 431P01 v odolnosti D. Stavba měla být zahájena ihned po obdržení potřebného materiálu. Jeho kompletní dodání se předpokládalo nejpozději 1.4.1938. Objekty měly být opatřeny záhozem. Střed střílen se měl nacházet 50 cm na úrovní terénu. Velký důraz byl kladen na utajení.

Foto
Nákres objektu lehkého opevnění vz. 37 typ B (v německých pramenech označovaný jako typ A), který byl budován ve vojenských prostorech německé armády pro výcvik jednotek přopravovaných na útok proti československému opevnění. Ve střílnách byly osazeny německé pancéřové desky 422P01, přičemž pozorovací průzor byl zazděn. Zdroj: Bundesarchiv
Foto
Nákres objektu lehkého opevnění vz. 37 typ A (v německých pramenech označovaný jako typ B), který byl budován ve vojenských prostorech německé armády pro výcvik jednotek přopravovaných na útok proti československému opevnění. Původní nákres bez zakomponování německé pancéřové desky 422P01. Zdroj: Bundesarchiv
Foto
Nákres objektu lehkého opevnění vz. 37 typ B (v německých pramenech označovaný jako typ A), který byl budován ve vojenských prostorech německé armády pro výcvik jednotek přopravovaných na útok proti československému opevnění. Nákres co nejvíce odpovídající československé variantě a vpravo s osazením desky 422P01. Zdroj: Bundesarchiv
Foto
Nákres německého oboustranného objektu upraveného dle německých standardů, který vycházel z podoby objektu lehkého opevnění vz. 37 typ A (v německých pramenech označovaný jako typ B). Osazen tak byl dvojicí pancéřových desek pro těžký kulomet 6P7 v odolnosti B. Jako vchodová střílna posloužila deska 48P8 v odolnosti D, Ve vstupu byly nejprve osazeny dveře 430P01 a za nimi 431P01 v odolnosti D. Budován byl ve vojenských prostorech německé armády pro výcvik jednotek přopravovaných na útok proti československému opevnění. Zdroj: Bundesarchiv

Již 28.2.1938 byl odeslán také nákres šestého požadovaného objektu. Jednalo se o kopii oboustranného objektu těžkého opevnění s centrálně umístěnou otočnou věží. V tomto případě se požadovala co nejjednodušší konstrukce s využitím cihel. Imitace zvonů měly být plechové. Otočnou kopulí mělo být možné točit pomocí dvou vojáků. Tento objekt neměl být postřelován, ale měl sloužit k nácviku přiblížení se lehkých bojových vozidel německé armády.

Foto
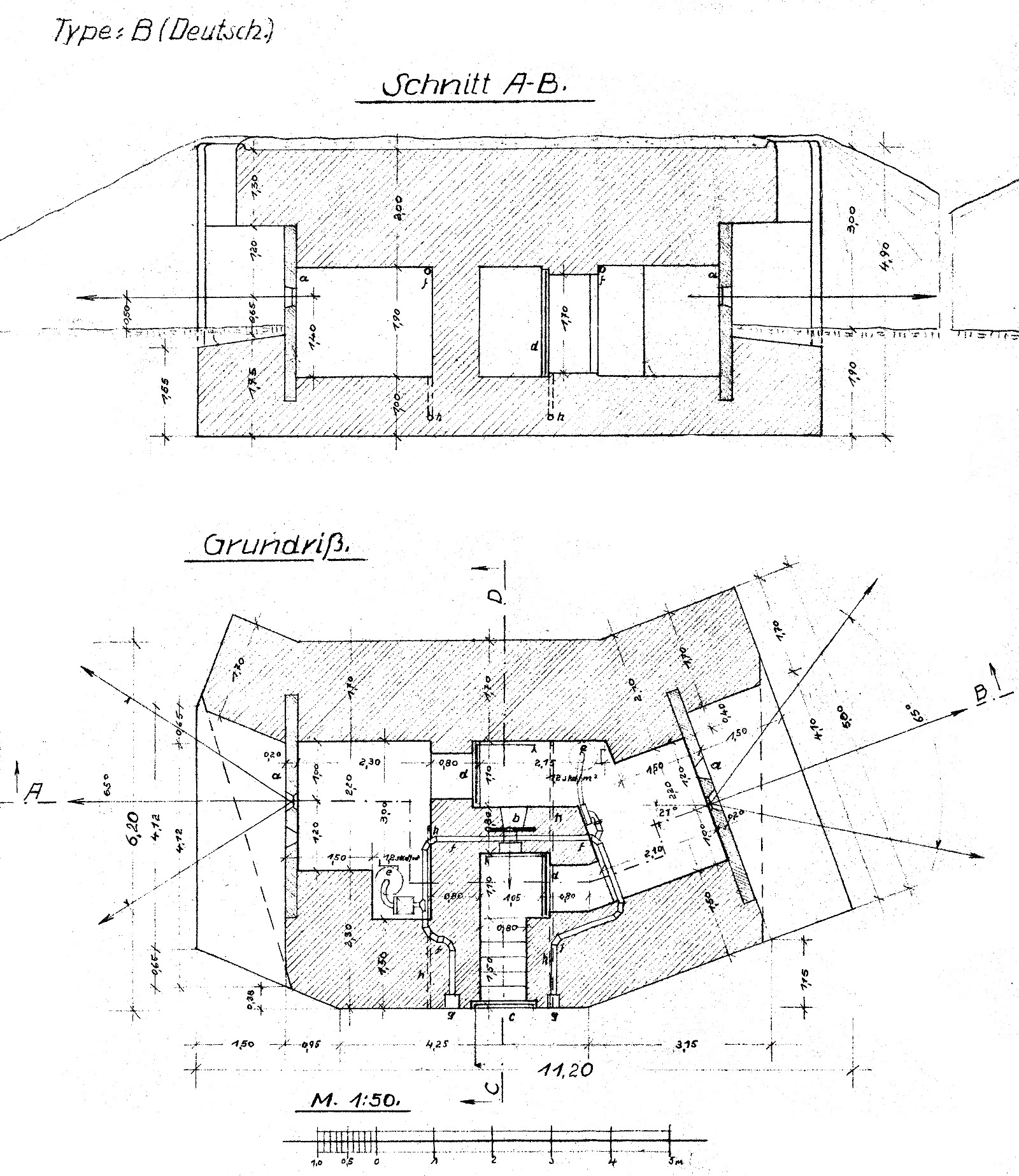
Nákres objektu těžkého opevnění, který byl budován ve vojenských prostorech německé armády pro výcvik jednotek přopravovaných na útok proti československému opevnění. Zdroj: Bundesarchiv
Foto
Nákres objektu těžkého opevnění, který byl budován ve vojenských prostorech německé armády pro výcvik jednotek přopravovaných na útok proti československému opevnění. Zdroj: Bundesarchiv

Všechny tyto objekty byly skutečně postaveny a v poměrně dobrém stavu se zachovaly dodnes. Kromě nich zde bylo postaveno také pět objektů imitujících lehké opevnění vz. 36. Patrně nejzajímavějším vybudovaným objektem je nicméně německá verze oboustranného objektu pro dva těžké kulomety, která vycházela z lehkého opevnění vz. 37 typ A.